Pages
HOME
ABOUT
PRODUCTS
SERVICES
E-SHOP
DOWNLOAD
TOOLS
GALLERY
EVENTS
BLOG
CAREER
FEEDBACK
CONTACT
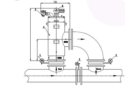
Installation drawing for Electric Self-Cleaning Screen Filter supplier in Semenyih
Installation drawing
For more information or enquiry, please contact
Environmech Sdn. Bhd
.
Contact us:
http://www.environmech.com/p/contact-us.html
Website:
www.Environmech.com
Newer Post
Older Post
Home